Cooperativa agrícola

VACÍO INTENCIONADO
Siguiendo el mismo hilo conductor y barajando los mismos temas de vacíos, llenos, masas…
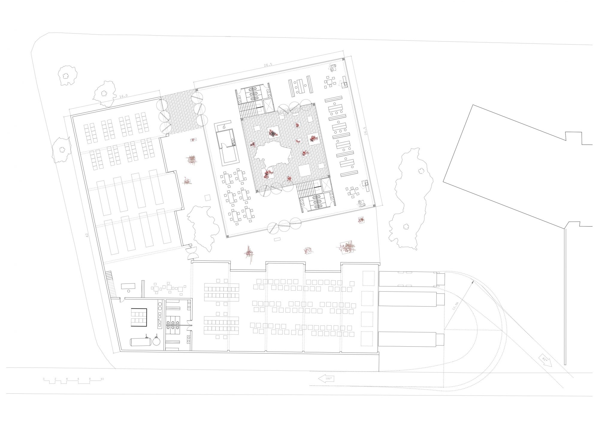
Realizamos la misma estrategia estableciendo una alineación con las dos calles principales. Dos paños rotundos y ciegos forman esa alineación.
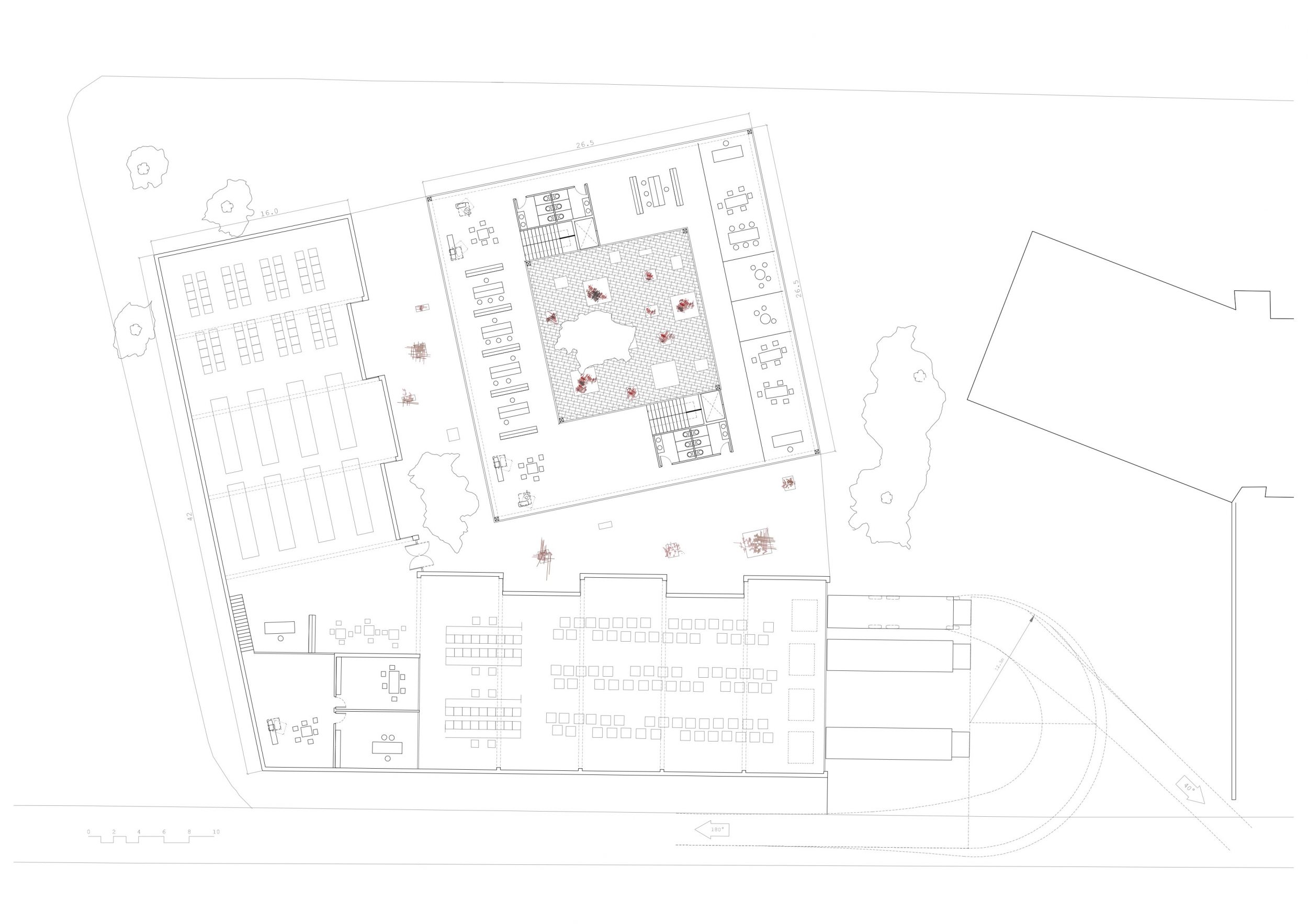
La vida de la cooperativa se vuelca hacia el interior, hacia el vacío que se crea entre los almacenes y la zona de oficinas y restaurante. Este es un espacio que espera ser ocupado y donde tenga lugar las relaciones entre las personas. Es una zona al aire libre y que deja penetrar a las dehesas existentes.



La cooperativa se divide en dos cuerpos opuestos uno rotundo estereotómico (zona de almacén) y otro cuerpo liviano, transparente (zona administrativa). Estos dos cuerpos tensan el espacio, el vacío que se crea entre ellos.
Esta es la zona pública al aire libre donde se relacionan los trabajadores. La zona administrativa, doble caja de cristal se resuelve en su perímetro. Ocho vigas vierendel que configuran toda la fachada del piso superior forman toda la estructura principaL.













